沥青路面铺设招标公告 1. 招标条件 本招标项目招标人为莆田市Home体育景观有限公司,项目已具备招标条件,现决定对该项目进行公开招标。 2. 项目概况和招标范围 1) 建设地点: 莆田市军分区 ; 2) 工程建设规模: 面积约1900平方米 ; 3) 招标范围和内容:沥青路面铺设及养护,由甲方提供大样图及施工要求进行施工,工程量具体按实结算; 4) 工期要求:总工期: 5 个日历天,根据甲方通知进场,2022年5月25日前必须完成施工;养护工期: 15 个日历天; 5) 工程质量要求: 合格 ; 6)发包方式:投标人需放样规划路面水流方向,所有材料、人工、机械及其它一切费用由投标人自行负责; 3. 投标人资格要求及审查办法 3.1 本招标项目要求施工单位须具备有效的企业法人营业执照(其工商营业执照经营范围应包括Home体育绿化或Home体育景观或风景Home体育或市政施工工作等); 3.2 本招标项目不接受联合体投标; 3.3 投标人的企业信息和拟派项目管理人员信息应在福建省建筑市场综合监管信息平台可查询到且查询到的信息完整; 3.4 投标人未被列入建筑市场主体“黑名单”的,且不在建筑市场主体“黑名单”管理有效期内的企业。 3.5 投标人应在人员、设备、资金等方面具有承担本招标项目施工的能力; 3.6 本招标项目招标人采用资格后审的方式对投标人进行资格审查。 4.发布公告的媒介 招标人在//homety88.com/index.html发布招标公告信息。
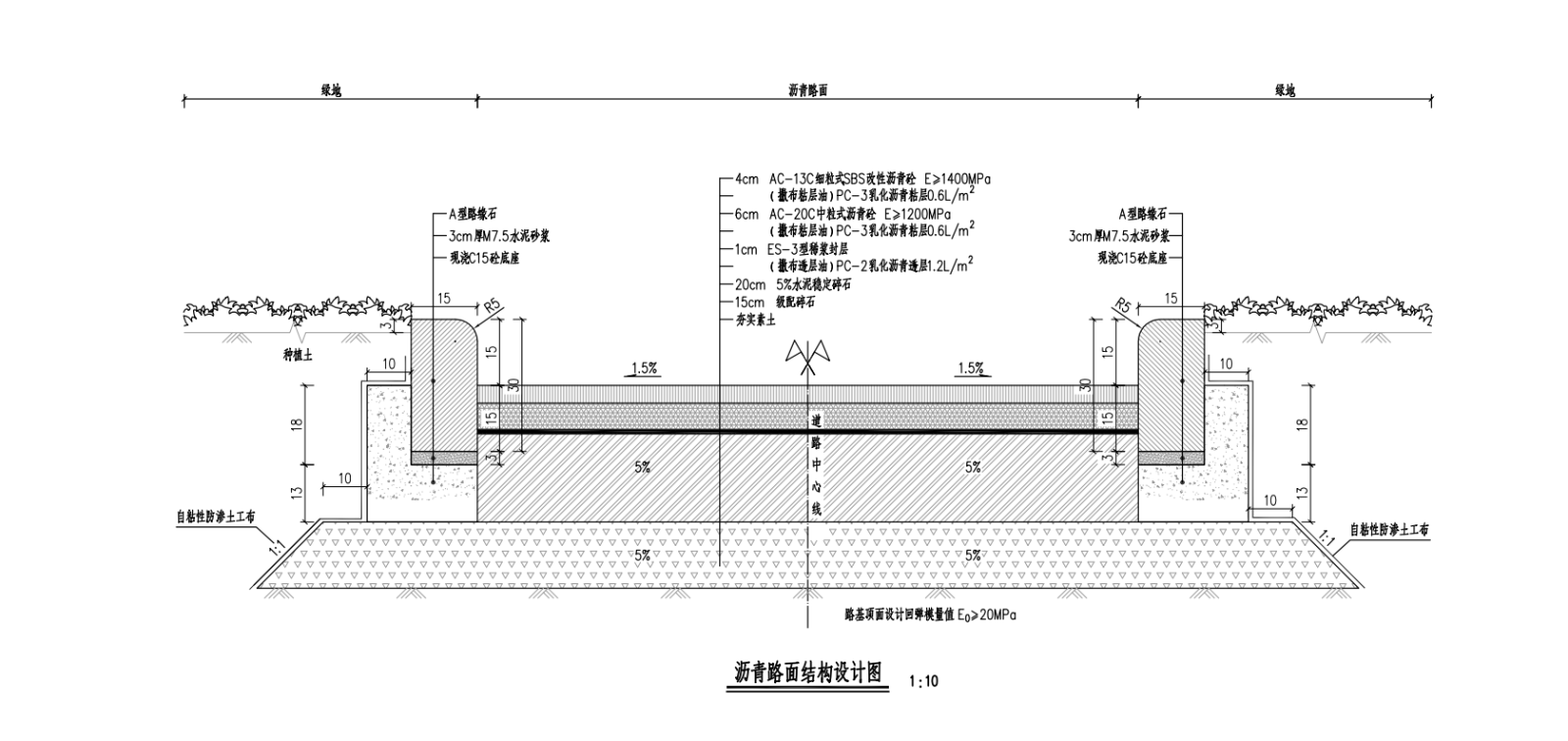
7.2开标完成后,未中标人投标保证金当场退还;中标人投标保证金在签订项目施工合同后直接转为履约保证金。中标人的投标保证金在缴交履约保证金签订施工合同后退还。 7.3投标保证金的有效期及投标文件有效期:90日历天(从投标截止之日算起)。 8. 投标文件的递交 1) 投标文件递交的截止时间(投标截止时间):2022年 5 月 5 日 15 时 00 分,提交地点为:莆田市绶溪公园Home体育管理处三楼305会议室(博物馆旁),之后进行现场公开开标。 2) 逾期送达的或未送达指定地点的投标文件,招标人不予受理。 9.附件:《沥青路面结构设计图》、施工工序 10.联系方式 招标人:莆田市Home体育景观有限公司 地址: 莆田市绶溪公园Home体育管理处(博物馆旁) 电话:13799650891 联系人:小姚
投标文件格式
沥青路面铺设 (简单低价)
投 标 文 件
招标项目名称: 投标人: (盖单位章) 法定代表人或其委托代理人: (签字或盖章)
日期: 年 月 日 目 录
(一)投标承诺函 (二)法定代表人资格证明书、法定代表人授权委托书(格式) (三)企业营业执照副本(含年检页)复印件并加盖投标人单位公章 (四)项目负责人职称证复印件并加盖投标人单位公章 (五)投标人认为需要提供的其他补充材料(保证金提交证明等相关材料)
注:以上证书、证件均需年检有效。
(一)投标承诺函
致: {招标人名称} 1、根据你方招标工程项目 {招标工程项目名称} 工程招标文件,按照《莆田市建设工程施工招标评标管理规定》等有关规定,经研究上述招标公告、图纸、工程建设标准和工程最高限价(单价)及其他有关文件后,我方愿以单价人民币(大写) 元/㎡(RMB:¥ 元/㎡)作为投标单价,并根据我司的投标单价作为签约合同价,并按上述图纸和工程建设标准的要求承包本工程的施工,并承担任何质量缺陷保修责任。 2、我方已详细审阅全部招标信息及有关附件。我方不存在资质和项目负责人不能满足招标要求的条件。 3、我方的投标文件是真实和准确的,并保证满足在招标公告第3.3、3.4款的规定,若有弄虚作假的,愿承担法律和经济责任。 4、若我方中标,我方保证按招标规定的要求工期 {工期} 日历天内完成并移交全部工程,工程质量达到 标准。 5、若我方中标,我方将派 (姓名)担任项目负责人。 6、我方同意所提交的投标文件在招标规定的投标有效期内有效,在此期间内如果中标,我方将受此约束。 10、除非另外达成协议并生效,你方的招标公告、中标通知书和本投标承诺函将构成约束双方合同文件的组成部分。
投 标 人: (盖单位章) 法定代表人或其委托代理人: (签字或盖章) 日期: 年 月 日
(二)法定代表人资格证明书、法定代表人授权委托书(格式)
1、法定代表人资格证明书
投标人名称: 。 地 址: 。 姓名: 身份证号码: 。 系 (投标人名称)的法定代表人。
特此证明。
投标人: (盖单位章) 日 期: 年 月 日
本格式用于投标人代表参加开标时使用。
2、法定代表人授权委托书
本人 (姓名)系 (投标人名称)的法定代表人,现授权委托 (姓名)为我方代理人,以我方名义签署、澄清、说明、补正、递交、撤回、修改 (招标人名称)的 (项目名称)施工投标文件、参加开标、签订合同和处理有关事宜,其法律后果由我方承担。 代理人无转委托权。
投标人: (盖单位章) 法定代表人: (签字或盖章) 法定代表人身份证号码: 委托代理人: (签字或盖章) 委托代理人身份证号码: 年 月 日
本格式用于投标人代表参加开标时使用。 附件: |
